Wohn- und Gewerbeimmobilien
#WOHNUNG ZU VERKAUFEN
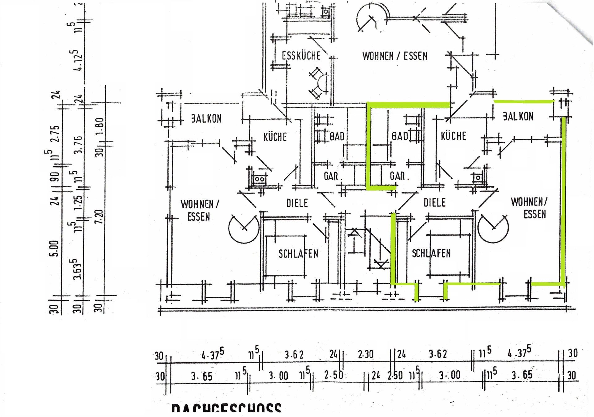
Helle Maisonette-Wohnung mit Südbalkon und Stellplatz
Wohnimmobilie KAUFEN
Objektbeschreibung:
- 3,5 Zimmer und großzügige Empore
- Baujahr 1994
- Familienhaus
- 1. OG und 2. OG Dachgeschoss mit Wendeltreppe verbunden
- Südbalkon in ruhigem Innenhof
- Empore ideal für Homeoffice
- 1 Stellplatz
- ca. 30 m² Wohn/Esszimmer mit Zugang zum Balkon
- hübsche kleine Wohnküche, ca. 11 m², mit Fenster zum Balkon
Ausstattung:
 
 - ca. 30 m² Wohn/Esszimmer mit Zugang zum Südbalkon
- Badezimmer mit Badewanne, Dusche, Toilette, Waschbecken und Waschmaschinenanschluss
- 1 Schlafzimmer im 1. OG und ein weiteres im Dachgeschoss
- Garderobe mit viel Staumöglichkeiten
- Holztüren
- Keller
- Fahrradkeller
- Waschküche
- PKW-Stellplatz direkt am Haus
- Rollläden
- Gaszentralheizung 2015
Lage:
Die Liegenschaft befindet sich in ruhiger Ortsmitte von Durmersheim. Geschäfte für den täglichen Bedarf und Restaurants sind fußläufig gut zu erreichen. Schulen, Kindergärten und Ärzte befinden sich in unmittelbaren Umgebung.
Bahnhof Durmersheim (Straßenbahn/Bus - Richtung Karlsruhe und Baden-Baden) ca. 500 m
Bushaltestelle Chennevieresplatz ca. 300 m
Friedrich Grundschule ca. 800 m
Realschule Durmersheim ca. 1,7 km
Adresse:
 
76448 Durmersheim
ÜBERSICHT
Objekttyp:
Eigentumswohnung
Baujahr:
1994
Zimmer:
3
Stockwerke:
1 und 2 (Dachgeschoss)
Wohnfläche:
ca. 91 m²
Kaufpreis:
325.000.-€
Hausgeld:
ca. 280.-€
Käuferprovision:
2,38 % inkl. MwSt.
Energieausweis:
124 kWh/(m²*a)
Verfügbar:
ab sofort - frei stehend
Adresse:
76448 Durmersheim
Möchten Sie Ihre Immobilie verkaufen oder vermieten?
Nutzen Sie unsere Erfahrung und unser Fingerspitzengefühl !
Lassen Sie sich vom Team der Nicole Kruß Wohn- und Gewerbeimmobilien OHG
beim Verkaufs- oder Vermietungsprozess erfolgreich begleiten.








