Wohn- und Gewerbeimmobilien
#GEWERBEIMMOBILIE ZU VERMIETEN
VERMIETET
Ideal für Start-Ups und Praxen: 
Attraktive Bürofläche mit fairer Miete
 
GEWERBEIMMOBILIE MIETEN
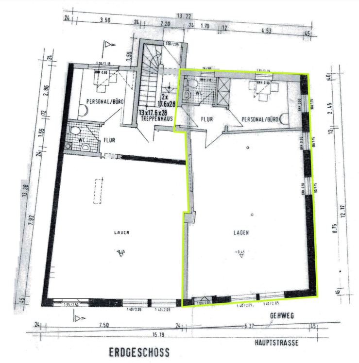
Objektbeschreibung:
- großzügige Büro-/Praxisfläche mit insgesamt ca. 73 m²
- einladende Fensterfront
- direkter Zugang für Zulieferer
- großer Raum+ 1 Nebenraum + WC mit Waschtisch
Ausstattung:
 
 - großer Verkaufsraum mit ca. 56m² Fläche
- der Raum kann individuell unterteilt werden
- Zugang direkt über die Straße und durch einen separaten Eingang im Treppenhaus
- Fenster auf beiden Seiten
Sämtliche Räume sind mit Wandkabelkanäle ausgestattet.
Lage:
Durmersheim mit seinen rund 12.000 Einwohnern ist eine Nachbargemeinde von Ettlingen, Rheinstetten, Malsch und Bietigheim.
Die Hauptstraße zeichnet sich als lebendige Einkaufsmeile aus. Sie wird von einer Vielzahl von Fußgängern und Autofahrern in beide Richtungen frequentiert.
Die dort ansässigen Geschäfte sind gut bekannt und leicht zu erkennen, was diese Lage ideal für eine hohe Wiedererkennbarkeit und Kundenbindung macht!
- Straßebahnanschluss am Durmersheimer Bahnhof: ca. 500 m entfernt.
- ca. 10 km bis Autobahnauffahrt A5 Rastatt in Richtung Basel
- ca. 13 km bis Autobahnauffahrt A5 Ettlingen in Richtung Frankfurt.
- ca. 20km und 20 Autominuten bis zum Karlsruher Hauptbahnhof
Sonstiges:
Die Vermietung der Fläche erfolgt ohne MwSt.
Adresse:
76448 Durmersheim, Hauptstraße
ÜBERSICHT
Objekttyp:
Gewerbeimmobilie I Praxis-/Büroräume
Zimmer:
2 - 4
Nutzfläche:
ca. 146 m²
Kaltmiete:
vermietet
Nebenkosten:
vermietet
Parkfläche:
vermietet
Mieterprovision:
3,57 Monatsmieten kalt inkl. MwSt
Verfügbar:
vermietet
Adresse:
76448 Durmersheim, Hauptstraße
Möchten Sie Ihre Immobilie verkaufen oder vermieten?
Nutzen Sie unsere Erfahrung und unser Fingerspitzengefühl !
Lassen Sie sich vom Team der Nicole Kruß Wohn- und Gewerbeimmobilien OHG
beim Verkaufs- oder Vermietungsprozess erfolgreich begleiten.





















