Wohn- und Gewerbeimmobilien
#HAUS ZU VERKAUFEN
VERKAUFT
Solides Haus mit Garten und Potential – ruhig gelegen auf großem Grundstück!
Wohnimmobilie KAUFEN
Objektbeschreibung:
In ruhiger Wohnlage von Eggenstein-Leopoldshafen erwartet Sie dieses solide Einfamilienhaus mit großem Garten und viel Gestaltungsspielraum.
Das Haus wurde 1968 erbaut und bietet ca. 156 m² Wohnfläche auf einem ca. 500 m² großen Grundstück.
Dank durchdachter Grundrissstruktur, separatem Seiteneingang und ausbaufähigem Dachgeschoss eignet sich die Immobilie ideal für Familien, Mehrgenerationenhaushalte oder individuelle Wohnkonzepte.
Es liegen bereits Umbaupläne eines Architekten vor, um aus dem Bestand ein modernes 5-Zimmer-Haus zu schaffen – diese können auf Wunsch zur Verfügung gestellt werden.
Ausstattung:
- Baujahrtypischer Zustand mit modernisierten Bädern
- Teilweise Wärmedämmung (Nordseite)
- Dach erneuert
- Steigleitungen erneuert
- Schwarzrohrleitungen für Heizung
- Potenzial für Einliegerwohnung im Untergeschoss
- Große Gartenfläche mit Gestaltungsmöglichkeiten
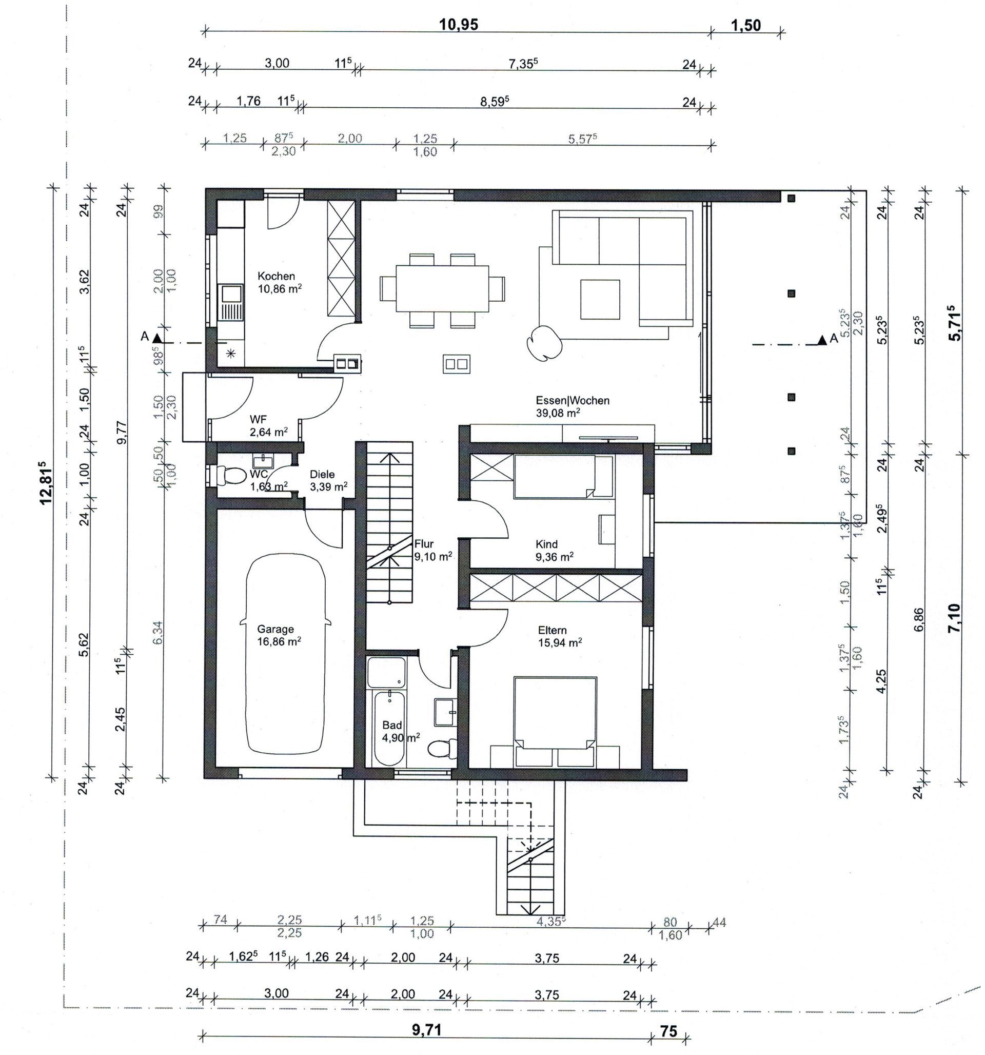
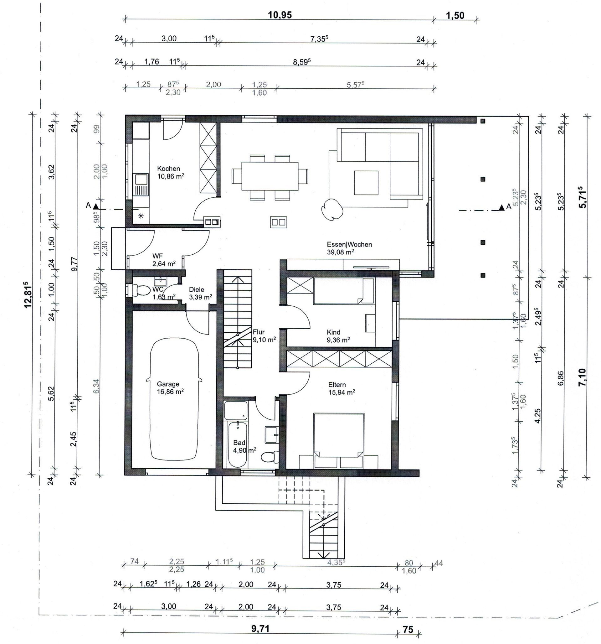
Raumaufteilung:
Erdgeschoss:
- Wohnzimmer
- Küche
- 2 Schlafzimmer
- Tageslichtbad
- Gäste-WC
- Garage mit direktem Hauszugang
Dachgeschoss:
- 2 Schlafzimmer
- Ausbaureserve
Untergeschoss:
- 2 Zimmer
- Badezimmer
- Vorratsraum
- 2 Kellerräume
- Heizungsraum mit Gaszentralheizung
Lage
Die Immobilie liegt in einer ruhigen Stichstraße im familienfreundlichen Ortsteil Leopoldshafen (Gemeinde Eggenstein-Leopoldshafen) – mit sehr guter Infrastruktur und Naherholungswert.
Umgebung & Erreichbarkeit:
- Supermarkt & Drogeriemarkt ca. 15 Gehminuten entfernt
- Grundschule, Gesamtschule & mehrere Kindergärten vor Ort
- Straßenbahnhaltestelle „Leopoldstraße“ (S1/S11) in ca. 7 Minuten zu Fuß
- B36 in ca. 3 Minuten mit dem Auto erreichbar
- KIT Campus Nord nur ca. 3 km entfernt
- Felder, Wälder & Rhein direkt vor der Tür
- Rheinfähre „Peter Pan“ nach Leimersheim
- Freizeitangebote: Baggerseen, Schwimmbad, Rad- und Wanderwege
Adresse:
76344 Eggenstein-Leopoldshafen
ÜBERSICHT
Objekttyp:
Einfamilienhaus
(1,5-geschossig)
Baujahr:
1968
Zimmer:
6
Wohnfläche:
ca. 156 m²
Grundstück:
ca. 500 m²
Bäder:
2 + Gäste-WC
Heizung:
Gaszentralheizung
Objektzustand:
teilmodernisiert / sanierungsbedürftig
Kaufpreis:
verkauft
Käuferprovision:
2,38 % vom Kaufpreis
inkl. MwSt.
Energieausweis:
in Vorbereitung
Verfügbar:
verkauft
Adresse:
76344 Eggenstein-Leopoldshafen
Möchten Sie Ihre Immobilie verkaufen oder vermieten?
Nutzen Sie unsere Erfahrung und unser Fingerspitzengefühl !
Lassen Sie sich vom Team der Nicole Kruß Wohn- und Gewerbeimmobilien OHG
beim Verkaufs- oder Vermietungsprozess erfolgreich begleiten.
































