Wohn- und Gewerbeimmobilien
#GEWERBEIMMOBILIE ZU VERMIETEN
Vielseitige Gewerbefläche mit Terrasse - im Herzen der Karlsruher Fußgängerzone
GEWERBEimmobilie MIETEN
Objektbeschreibung:
Diese großzügige Gewerbefläche liegt in einem gepflegten Wohn- und Geschäftshaus direkt in der Fußgängerzone – ideal für maximale Sichtbarkeit mit vielfältigen Werbemöglichkeiten im Außen- und Eingangsbereich.
Die flexiblen Räumlichkeiten bieten durch große Fenster helle Arbeitsbereiche.
Alternativ ermöglichen teilweise mit Rigipsplatten verschlossene Fenster ein abgedunkeltes Raumkonzept.
Ob Büro, Praxis, Kanzlei, Fachgeschäft, Showroom oder Schulungsräume – hier sind zahlreiche Nutzungskonzepte realisierbar. Welche Geschäftsidee möchten Sie hier umsetzen?
- ca. 330 m² im 1. OG
- über Lift barrierefreier Zugang
- Herrenstraße, Karlsruhe (Nähe Kammertheater)
- letzte Modernisierung 1991
Ausstattung:
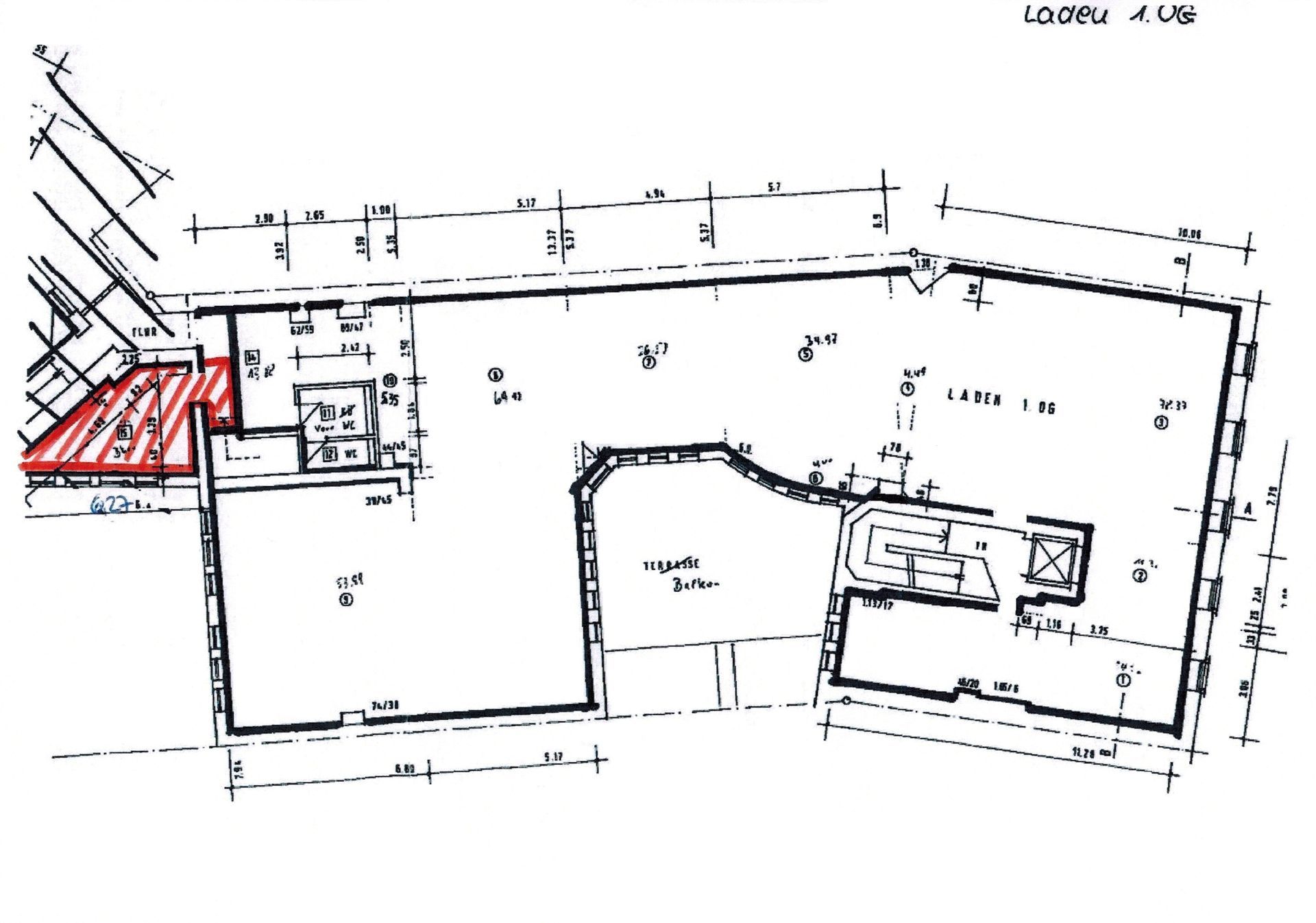
- Aktuelle Raumaufteilung:
2 separate Räume + 1 Großraum + Sanitär + Abstellfläche - weitere Unterteilungen sind möglich
- auf Wunsch kann ein weiterer Raum von ca. 15 m² angemietet werden (s, Grundriss: rot schraffiert)
- Stäbchenparkett
- Fernwärme Heizung
- Lift mit ebenerdigen Zugang
- 1 PKW-Stellplatz im Innenhof
- großzügige Terrasse zum Innenhof zur alleinigen Nutzung
- Split Geräte zur Raumkühlung
- 7 Schaukästen im Eingangsbereich im EG
Lage:
Beste Lage für Ihr Business – Zentral, Erreichbar, Attraktiv
✔
Zentral & bestens angebunden – Nur wenige Gehminuten zur Kaiserstraße, Straßenbahnhaltestelle und einer öffentlichen Tiefgarage (ca. 3 Min.).
✔
Komfortabel erreichbar – Die Einheit im 1. Obergeschoss ist dank Lift
barrierefrei zugänglich.
✔
Lebendige Umgebung – Vielfältige Gastronomie- und Einkaufsmöglichkeiten direkt vor der Tür.
✔
Erholung in der Nähe – Ein begrünter Platz lädt zur Mittagspause ein, der Schlossgarten ist in 8–10 Minuten erreichbar.
✔
Perfekt für Kanzleien & Dienstleister – In unmittelbarer Nähe zu Amtsgericht, Landesgericht und Bundesgerichtshof.
Ein Standort, der Ihre Geschäftsidee optimal unterstützt!
Adresse:
Herrenstraße 24, 76133 Karlsruhe
ÜBERSICHT
Objekttyp:
Gewerbeimmobilie
Sanierung:
1991
Nutzfläche:
ca. 330 m²
Kaltmiete:
2.600.- € (zzgl. MwSt.)
Nebenkosten:
670.-€ (zzgl. MwSt.)
Kaution:
3 Monatsmieten warm
Provision:
3,57 Monatsmieten kalt inkl. gesetzl. MwSt.
Verfügbar:
ab sofort - leerstehend
Möchten Sie Ihre Immobilie verkaufen oder vermieten?
Nutzen Sie unsere Erfahrung und unser Fingerspitzengefühl !
Lassen Sie sich vom Team der Nicole Kruß Wohn- und Gewerbeimmobilien OHG
beim Verkaufs- oder Vermietungsprozess erfolgreich begleiten.













