Wohn- und Gewerbeimmobilien
#WOHNUNG ZU VERKAUFEN
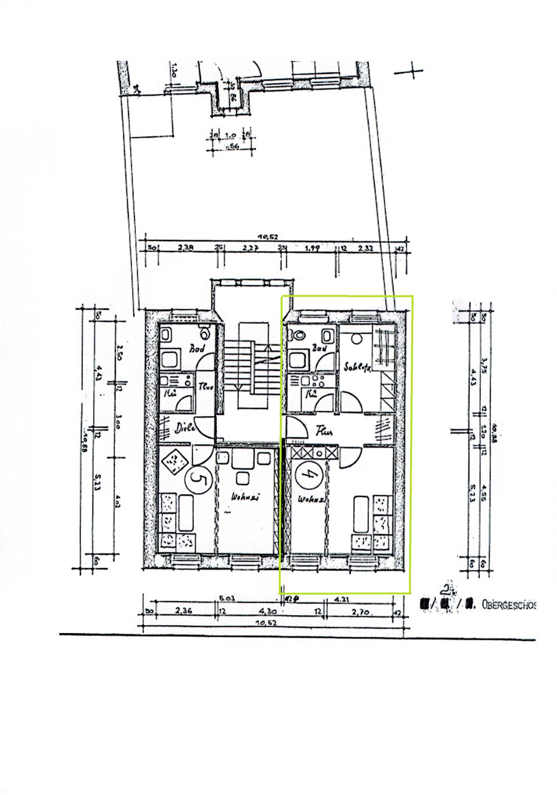
Wohnfläche perfekt verteilt - Einbauküche - Nähe Straba und HBF
Wohnimmobilie KAUFEN
Objektbeschreibung:
- 2 Zimmer Wohnung im 2. Obergeschoss
- Baujahr 1905
- 8 Familienhaus
- 2009 Erneuerung der Gaszentralheizung
- 2007 neue isolierverglaste Kunststofffenster inkl. gedämmter Rollladenkästen
- 2006 Dämmung der seitlichen Hauswand
Ausstattung:
- heller Laminatboden
- weiße isolierverglaste Fenster
- Holztüren, teilweise mit Glaseinsatz
- sehr gepflegte Einbauküche
- Tageslichtbad mit Dusche, Waschbecken und WC
- Waschmaschinenanschluss im Bad
- Abstellmöglichkeiten im dazugehörigen Keller
Schöner Innenhof zur gemeinschaftlichen Nutzung.
Lage:
Perfekte City-Lage ! Sie erreichen bequem in wenigen Gehminuten den Hauptbahnhof. Die Straßenbahnhaltestelle "Augartenstraße" liegt direkt um die Ecke. Ebenso schnell erreichen Sie zu Fuß den Werderplatz mit sämtlichen Einkaufsmöglichkeiten für den täglichen Bedarf. Auch die Karlsruher Fußgängerzone erreicht sehr gut zu Fuß. Schneller Anschluss an die Südtangente in Richtung Autobahn A5 + A8 + A65
Adresse:
76137 Karlsruhe
ÜBERSICHT
Objekttyp:
Eigentumswohnung
Baujahr:
1905
Zimmer:
2
Stockwerke:
2
Wohnfläche:
ca. 40 m²
Kaufpreis:
150.000.-€
Käuferprovision:
2,38 % inkl. MwSt.
Energieausweis:
143 kWh/(m²*a)
Verfügbar:
derzeit vermietet
Adresse:
76137 Karlsruhe
Möchten Sie Ihre Immobilie verkaufen oder vermieten?
Nutzen Sie unsere Erfahrung und unser Fingerspitzengefühl !
Lassen Sie sich vom Team der Nicole Kruß Wohn- und Gewerbeimmobilien OHG
beim Verkaufs- oder Vermietungsprozess erfolgreich begleiten.








